One-bedroom Apartment – Saint-Jean-d’Aulps
Description
One-bedroom Apartment To Renovate Close to the Center of Saint-Jean-d’Aulps
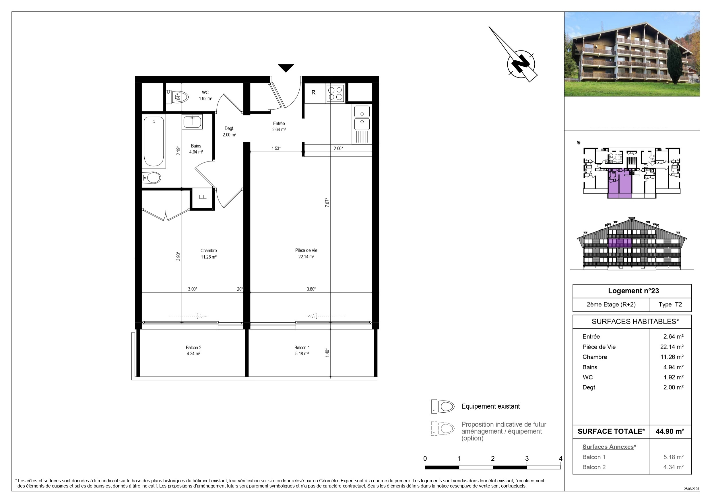
Located in Saint-Jean-d’Aulps, in the Abbey district, just a short walk from the village centre, this 44.90 sqm (Carrez law) shell space offers a blank canvas to be fully fitted out according to your wishes.
The building is undergoing a complete renovation program, both externally and internally, and benefits from excellent natural light thanks to its south-west exposure.
This second-floor apartment is laid out as follows:
An entrance hall of 2.64 sqm, a corridor of 2.00 sqm, a living room of 22.14 sqm opening onto a 5.18 sqm balcony, a bedroom of 11.26 sqm with access to a 4.34 sqm balcony, a bathroom of 4.94 sqm, and a separate WC of 1.92 sqm.
A true blank canvas, this property allows you to design a tailor-made interior, with a layout offering numerous possibilities for configuration.
The property allows you to design a fully bespoke interior, with a layout offering numerous configuration possibilities.
The apartments are sold with connection points for water supply and drainage. Individual electricity meter, new windows and sliding glass doors.
A cellar and an outdoor parking space complete this property.
In addition, the building works include external thermal insulation, replacement of joinery with double-glazed windows featuring integrated roller shutters, as well as the installation of new apartment entrance doors.
For further information, please contact us at +33(0)4.50.75.77.31, ASCENSION IMMOBILIER MORZINE. Viewings available from Monday to Saturday.
*Ref: RM-23 – Agency fees payable by the seller – Energy rating: 161 kWh/m²/year (Class C) – Climate rating: 6 kg CO₂/m²/year (Class B) – Estimated annual energy costs for standard use, based on energy prices from 2021, 2022 and 2023: €740 to €1,020 – Information on the risks to which this property is exposed is available on the Géorisques website: http://www.georisques.gouv.fr
- Area: 44.9
- Bedrooms: 1
- Rooms: 2
- Floors: 2nd/3
- Bathrooms: 1
- Parking: 1 Outdoor parking
- Co-ownership: Yes
- Heating mode: Electric, Radiator, Individual
- Exposure: South/West
161 kWh/m².year (C)
6 kg CO2/m².year (B)
