Renovation Project – 3-Bedroom Apartment Close to the Center of Saint-Jean-d’Aulps
Description
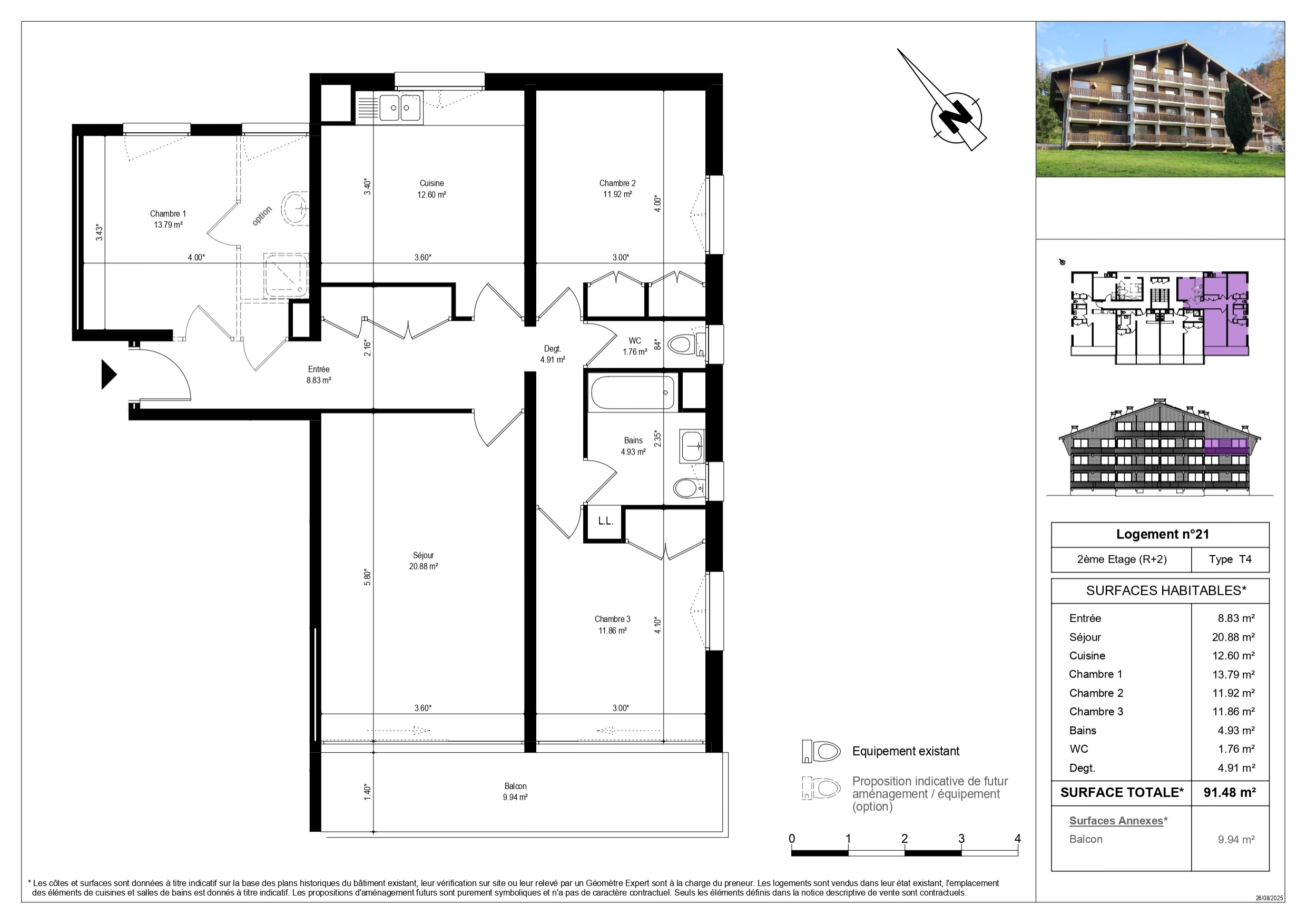
Located in Saint-Jean-d’Aulps, just a stone’s throw from the village center, this shell apartment of 91.48 sqm (Carrez law) offers a space entirely to be fitted out according to your wishes.
Set within a building that will soon undergo both exterior and interior renovations, it stands out for its immediate proximity to amenities and its beautiful natural light with its southwest exposure.
This second-floor apartment is laid out as follows:
A spacious entrance hall of 8.83 sqm, a first bedroom of 13.79 sqm, a separate kitchen of 12.60 sqm, a second bedroom of 11.92 sqm, a third bedroom of 11.86 sqm opening onto a balcony, a bathroom of 4.93 sqm, and a separate WC of 1.76 sqm. A large living room of 20.88 sqm opens onto a 9.94 sqm balcony.
A true blank canvas, this property allows you to design a tailor-made interior, with a layout offering numerous possibilities for configuration.
The apartments are sold connected to water, electricity, and sanitation networks, but without interior finishes, leaving complete freedom for personal customization.
A cellar and an indoor parking space complete this property.
In addition, the building works include exterior thermal insulation, replacement of windows with double glazing and integrated roller shutters (in the upstairs bedrooms and on all ground floor openings), as well as the installation of new entrance doors. Each unit will be connected to the electricity grid and equipped with a Linky meter, with the choice of heating system left to the buyer (radiators or heat pump). Plumbing outlets will be provided and marked, but no sanitary equipment will be installed. Finally, the finishing of the communal areas (painting and flooring) will be carried out by the seller upon completion of the private works.
For further information, please contact us at +33(0)4.50.75.77.31, ASCENSION IMMOBILIER MORZINE. Viewings available from Monday to Saturday.
*Ref: RM-21 – Fees payable by the seller – Energy rating: “ In progress ” – Climate rating: “ In progress ” – Information about the risks to which this property is exposed is available on the Géorisques website http://www.georisques.gouv.fr
- Area: 91.48
- Bedrooms: 3
- Rooms: 4
- Floors: 2nd/3
- Bathrooms: 1
- Parking: 1 Indoor parking space
- Co-ownership: Yes
- Heating mode: Electric, Radiator, Individual
- Exposure: South/West
In progress
In progress
